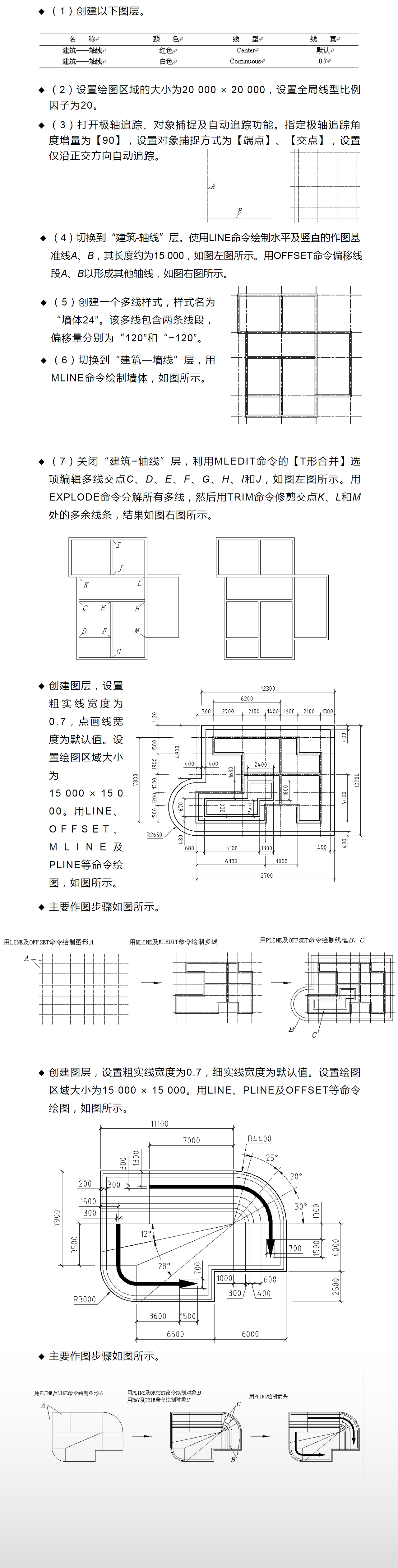
绘制多线段