二、浴缸
要使一个几何体变化成一个实用的家具模型,必须要有一个明确的制作思路。本例制作的浴缸就是创建一个长方体后塌陷为可编辑多边形,再使用挤出倒角等方法制作完成的。
在透视图中创建一如图4.4.95所示,参数的切角长方体:

图4.4.95
建立模型之后,在模型上按鼠标右键,将其塌陷为可编辑多边形,如图4.4.96所示。

图4.4.96
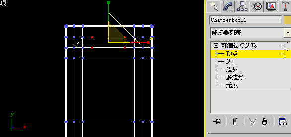
要想在模型上面表现出更多的细节,就要在模型表面上划分更多的表面。进入修改器堆栈中的“顶点”级别,在顶视图中调节各顶点的位置,首先用框选的方式选如图4.4.97所示的顶点。

图4.4.97
利用缩放工具,锁定Y轴,往下拖动鼠标,调整成如图4.4.98所示的状态。

图4.4.98
用移动工具,调整到如图4.4.99所示的位置。

图4.4.99
用相同的方法,调整如图4.4.100所示的顶点。

图4.4.100
进入多边形的边层级,选择如图4.4.101所示的边。

图4.4.101
点击“编辑边”当中的“连接”工具,生成一连接边,如图4.4.102所示。

图4.4.102
再用刚才的顶点的移动方法,调整竖向的顶点如图4.4.103所示。

图4.4.103
在修改命令面板的“编辑几何体”卷展栏中点击按钮,在如图4.4.104所示的位置进行面。注意:在切割模型表面时,一般使用顶点捕捉进行切割,如果不使用捕捉就进行切割,在切割过程当中会出现一些不规则的三角面,容易出现错误。

图4.4.104
用点选的方式选择如下的两条边,注意,这里不要用框选,这样会把后面的边也选择上,如图4.4.105所示。

图4.4.105
点击按钮,把分段设置成2,如图4.4.106所示。

图4.4.106
继续用缩放工具调整顶点如图4.4.107所示。

图4.4.107
继续用切割工具,成如图4.4.108所示的状态。

图4.4.108
再来调整下面部分,进入边层级,选择如图4.4.109所示的边。

图4.4.109
点击连接工具,注意分段数为1,如图4.4.110所示。

图4.4.110
同样右边也用相同的方法连接一条新边出来,如图4.4.111所示。

图4.4.111
进入多边形层级,选择如下的表面,单击挤出按钮右侧的复选框,设置挤出值为-120mm,如图4.4.112所示。

图4.4.112
单击应用按钮后,结合键盘上的Alt键减选其外表面,设置挤出值为-300mm,单击“确定”按钮,这样就完成了两次挤出。如图4.4.113所示。

图4.4.113
最后结果如图4.4.114所示,若没有做到如下效果,注意检查一下所选择的表面,是不是连下面的表面也选择了。

图4.4.114
选择如图4.4.115所示的表面,注意不要选择背面,单击挤出按钮右侧的复选框,设置挤出值为100mm:

图4.4.115
效果如图4.4.116所示。

图4.4.116
在左视图,用框选的方式选择如图4.4.117所示的顶点,往下稍做移动:


图4.4.117
结果如图4.4.118所示。

图4.4.118
从图中可以看出,挤出后的效果并没有什么细节,其本身的边面都是直线,缺乏变化,要改变这种现象,可以利用移动工具移动相应的顶点,从而产生更多的变化。框选如下顶点,如图4.4.119所示。

图4.4.119
移动至如图4.4.120所示位置:

图4.4.120
框选如图4.4.121所示的顶点。

图4.4.121
移动至如图4.4.122所示位置。

图4.4.122
得到如图4.4.123所示效果。

图4.4.123
在细分曲面卷展栏,勾选“使用NURMS细分”,设置迭代次数为2,如图4.4.124所示。

图4.4.124
这样一来,我们就得到了一个非常好的浴缸模型了。接下来我们做一些简单的渲染操作。选择如图4.4.125所示的浴缸外表面。

图4.4.125
在多边形材质ID卷展栏中设置ID为2,其他的表面为1,如图4.4.126所示。

图4.4.126
退出多边形层级,回到物体的总层级。单击主工具栏上的按钮,打开材质编辑器,如图4.4.127所示。

图4.4.127
单击按钮,从中选择“多维子对象”材质类型,如图4.4.128所示。

图4.4.128
选择丢弃旧材质,如图4.4.129所示。

图4.4.129
设置数量为2,因为我们只需要两个材质类型就可以了,如图4.4.130所示。
图4.4.130
把这个多维子对象材质指定给浴缸物体,在选择浴缸的情况下,单击按钮。下面我们就分别来编辑ID为1的光滑陶瓷材质和ID为2的仿古砖材质。如图4.4.131所示。

图4.4.131
单击如下的按钮进入ID为1的材质,如图4.4.132所示。

图4.4.132
单击主工具栏上的按钮,打开渲染场景对话框,如图4.4.133所示。

图4.4.133
在指定渲染器卷展栏下面,选择VRAY渲染器,如图4.4.134所示。

图4.4.134
关闭渲染场景对话框,这个时候,我们就可以在材质编辑器中选择VRayMtl了,如图4.4.135所示。

图4.4.135
把参数调整成如图4.4.136所示。

图4.4.136
单击进入父材质层级,同样进入ID为2的材质,也换成VRayMtl的材质类型。在漫射通道上面添加一平铺贴图类型,如图4.4.137所示。

图4.4.137
在高级控制卷展栏中调整一下两个颜色,如图4.4.138所示。

图4.4.138
最后渲染,就出来了浴缸的效果如图4.4.139所示。

图4.4.139



